Hřebenáč

Hřebenáč je druh střešní tvarovky, určený k zakrytí hřebenů a nároží na střeše. Slouží k řádnému překrytí hrany střechy vznikající ve vrcholovém styku dvou ploch střešních rovin. Má kónický tvar, čímž je dosaženo důkladného překrytí.

Více informací

Hřebenáč

Technické parametry

  • Materiálvelmi kvalitní pigmentovaný beton
  • Povrchhladký matný / hladký lesklý
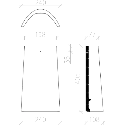
  • Délka405 mm
  • Šířka (zužující se tvar)235 - 205 mm
  • Výška profilu hřebenáče108 - 77 mm
  • Hmotnost3,8 kg
  • Potřeba2,8 ks/1 bm
  • Zatížení střechy10,46 kg/1 bm
Technický výkres

Návod k montáži

  1. Hřebenáče se pokládají s přesahem za sebou od předu do zadu většinou po směru převládajícího působení větru.
  2. Přichycují se hřebenovými příchytkami, které se nejdříve fixují k hřebenové lati. Do této příchytky se vloží hřebenáč.
  3. Každá další příchytka se fixuje vrutem skrz předražený otvor v hřebenáči a spodní otvor v příchytce k hřebenové lati.
Výkres k návodu

Zjistěte si více informací

Prohlédněte si ceny našich betonových tašek v přehledném ceníku. Naši obchodní a techničtí zástupci vám rovněž poradí s výběrem.

Zjistěte si cenu vaší nové střechy

Kontakt – Betonpres
Max. 5 souborů, každý max. 10 MB. Povolené formáty: PDF, JPG, PNG, GIF, WEBP.