Tvarovka pultová
Tento druh tvarovky se používá pro snadné, estetické a bezpečné zakončení horní hrany pultové střechy. Tvarovka disponuje novou kompletně inovovanou pultovou hranou, která je tvořena ukončovacím pásem. Tento pás pak tvoří jednotnou přímou linii na pultové hraně.
Jedná se o velmi elegantní jednoduché a harmonické řešení. Nahrazuje jiná esteticky či technicky neuspokojivá řešení.

Perfektní linie díky ostré pultové hraně.
Technické parametry
- Materiálvelmi kvalitní pigmentovaný beton
- Povrchhladký matný / hladký lesklý
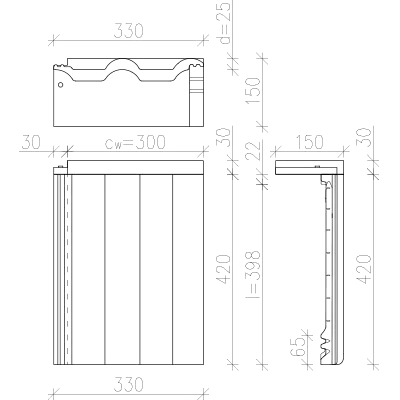
- Délka445 mm
- Šířka330 mm
- Závěsná délka (L)398 mm
- Výška profilu tašky (d)25 mm
- Krycí šířka Cw300 mm
- Hmotnost7,3 kg
- Spotřeba3,3 ks/1 bm
- Zatížení střechy24,09 kg/1 bm
Návod k montáži
- Pultové tašky zavěsíme za horní lať pultové střechy tak, aby nám vytvořili pultovou hranu.
- Tašky pokládáme při pohledu od okapu zprava doleva. Při použití okrajových tvarovek začínáme tvarovkou pultovou okrajovou pravou.
- Každou tvarovku zajistíme příchytkou tašky a vrutem skrz předem připravený otvor v zadní pultové části, který je opatřen dilatační vložkou.
- Pultovou hranu uzavřeme na levé straně tvarovkou pultovou okrajovou levou. Ta jediná se připevní ve vrchní části tašky klempířským vrutem – barvený TORX 4,5×60 mm s podtěsněnou hlavou skrz na stavbě vyvrtaný otvor.
Střešní tvarovky Natura
Zjistěte si více informací
Prohlédněte si ceny našich betonových tašek v přehledném ceníku. Naši obchodní a techničtí zástupci vám rovněž poradí s výběrem.
Zjistěte si cenu vaší nové střechy